户外野奢酒店帐篷
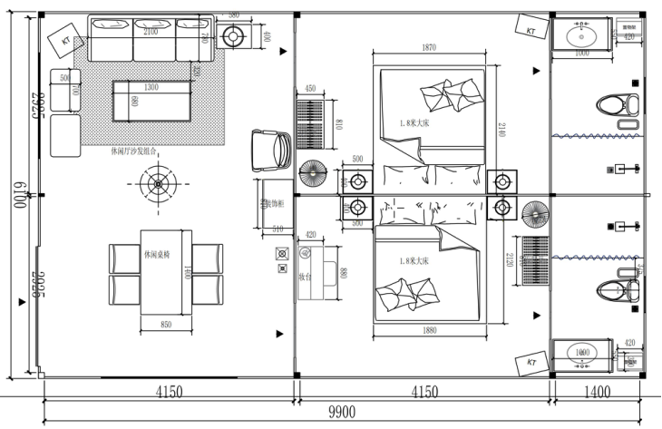
主材:优质碳钢钢管(氟碳漆防锈处理) 外膜:700g弹力布 内帐及墙体:帆布规格:6m*10m 套内面积:62㎡ 投影面积:142.97㎡ 产品面积:60㎡地台面积:94㎡ 抗风等级:6级以下
产品咨询